0 Rocky River Road N
0 Rocky River Road N
0 Rocky River Road N
0 Rocky River Road N
SEE ALL PHOTOS
0 Rocky River Road N
0 Rocky River Road N
0 Rocky River Road N
0 Rocky River Road N
Courtesy of Keller Williams Select, Denis Dashchenko Listing Contact: [email protected] 
Active Under Contract

0 Rocky River Road N

0 Rocky River Road N, Monroe, NC 28110

$1,900,000
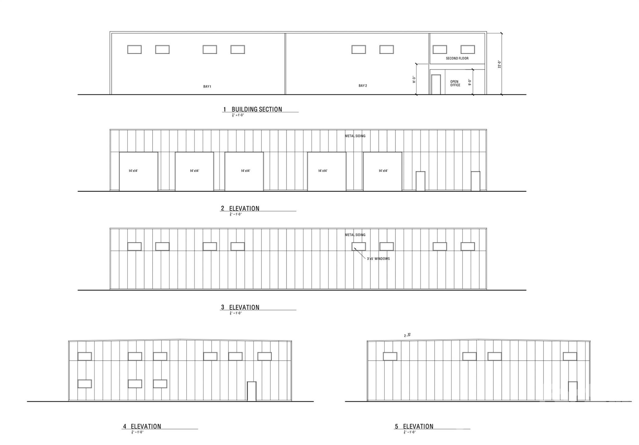
Exceptional opportunity to acquire +-27.7 acres of General Industrial (GI) zoned property with site work approvals already secured. This fully entitled project is positioned for immediate development and includes approved permits for erosion control, storm water, and driveway access. The approved site plan features a proposed 10,800 sq.ft. industrial shop building along with approximately 4 acres of paved parking and laydown area. All required bonds are in place, and extensive pre-development work has been completed. Seller has finalized construction drawings and all construction quotes in hand. The next step in the process was a formal meeting between the preferred General Contractor and the City of Monroe Planning & Zoning Department to initiate the building permit process. List price includes all site work approvals, engineering, and building drawings. Ideal for manufacturing, distribution, fleet operations, storage, or investment development.

27.7 Acres lot

Denis Dashchenko

Denis Dashchenko

Features & Amenities

Area & Lot

  • Status Active Under Contract
  • Lot Area27.7 Acres
  • MLS® ID4349734
  • TypeCommercial
  • Elementary SchoolUnspecified
  • Middle SchoolUnspecified
  • High SchoolUnspecified

Exterior

  • water SourceCity, Tap Fee Required
  • lot featuresCleared, Flood Plain/Bottom Land
  • sewerPublic Sewer, Tap Fee Required

Financial

  • Sales Price$1,900,000
  • Zoning GI
image

Schedule a Showing

I would love to show you my beautiful property. Please select your preferred date and time below. I will be in touch shortly to confirm your appointment.

Schedule a Showing

I would love to show you my beautiful property. Please select your preferred date and time below. I will be in touch shortly to confirm your appointment.

Thank you for your interest in 0 Rocky River Road N, Monroe, NC 28110. We are reviewing your request and will be in touch shortly!

Mortgage Calculator

Estimate your monthly mortgage payment, including the principal and interest, property taxes, and HOA. Adjust the values to generate a more accurate rate.

All estimates are provided for informational purposes only. Actual amounts may vary.
$0,000 Your Payment 20 15 65
$0,000 Your Payment

Work With Dennis

I'm dedicated to helping clients like you achieve their real estate dreams, whether it's buying your first home, selling your property, or exploring investment opportunities.

Follow Me on Instagram